Проект шумозащитного экрана чертежи


Проект 2. Участок №1 – Фасад шумозащитного экрана

Проект 2. Участок №1 – Фасад шумозащитного экранаПроект 2. Участок №1 – Фасад шумозащитного экрана

Чертёж шумозащитного экрана (1)

Чертёж шумозащитного экрана (1)Чертёж шумозащитного экрана (1)

Чертёж шумозащитного экрана (2)

Чертёж шумозащитного экрана (2)Чертёж шумозащитного экрана (2)

Чертёж шумозащитного экрана (3)

Чертёж шумозащитного экрана (3)Чертёж шумозащитного экрана (3)

Чертёж шумозащитного экрана (4)

Чертёж шумозащитного экрана (4)Чертёж шумозащитного экрана (4)

Чертёж шумозащитных экранов (1)

Чертёж шумозащитных экранов (1)Чертёж шумозащитных экранов (1)

Чертёж шумозащитных экранов (2)

Чертёж шумозащитных экранов (2)Чертёж шумозащитных экранов (2)

7. Армирование – БНС №1-6 шумозащитного экрана

7. Армирование – БНС №1-6 шумозащитного экрана7. Армирование – БНС №1-6 шумозащитного экрана

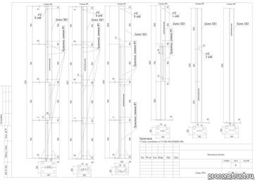
11. Чертёж Стойки №1-6 шумозащитного экрана

11. Чертёж Стойки №1-6 шумозащитного экрана11. Чертёж Стойки №1-6 шумозащитного экрана

54.1. Участок №2 – Узел крепления к БНС шумозащитного экрана

54.1. Участок №2 – Узел крепления к БНС шумозащитного экрана54.1. Участок №2 – Узел крепления к БНС шумозащитного экрана

54.2. Участок №2 – Узел крепления к БНС

54.2. Участок №2 – Узел крепления к БНС54.2. Участок №2 – Узел крепления к БНС

59. Вариант 3 – Лист 3

59. Вариант 3 – Лист 359. Вариант 3 – Лист 3

60. Вариант 3 – Лист 4

60. Вариант 3 – Лист 460. Вариант 3 – Лист 4

61. Шумозащитный экран с козырьком (перепад высот) – 2D

61. Шумозащитный экран с козырьком (перепад высот) – 2D61. Шумозащитный экран с козырьком (перепад высот) – 2D

62. Панели шумозащитные чертёж схема

62. Панели шумозащитные чертёж схема62. Панели шумозащитные чертёж схема
фото шумопоглощающих экранов фото шумоотражающих экранов фото прозрачных шумозащитных экранов фото комбинированных шумозащитных экранов ворота шумозащитные мобильный шумозащитный экран фото шумозащитных кожухов видео шумозащитных экранов